Официальное опубликование правовых актов
ОФИЦИАЛЬНОЕ ОПУБЛИКОВАНИЕ
Постановление Правительства Белгородской области от 25.08.2017 № 320-пп
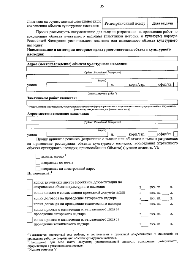
"Об утверждении административного регламента предоставления государственной услуги управления государственной охраны объектов культурного наследия Белгородской области "Выдача разрешения на проведение работ по сохранению объекта культурного наследия регионального значения, включенного в единый государственный реестр объектов культурного наследия (памятников истории и культуры) народов Российской Федерации, выявленного объекта культурного наследия"
Номер опубликования: 3100201708300003
Дата опубликования: 30.08.2017
Страница №35 из 46:
Увеличить