Официальное опубликование правовых актов
ОФИЦИАЛЬНОЕ ОПУБЛИКОВАНИЕ
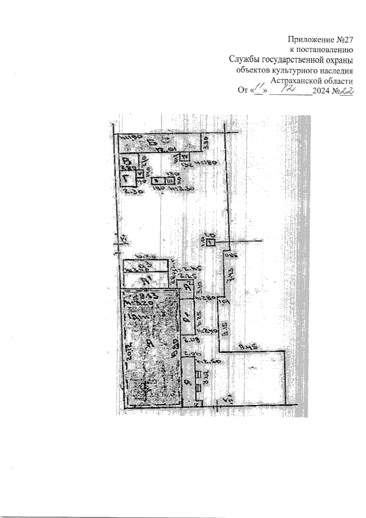
Постановление Службы государственной охраны объектов культурного наследия Астраханской области от 11.12.2024 № 22
"Об установлении границ территорий объектов культурного наследия, расположенных в городе Астрахани"
(Зарегистрирован 11.12.2024 № 302/24/22)
Номер опубликования: 3001202412200001
Дата опубликования: 20.12.2024
Страница №38 из 43:
Увеличить