Официальное опубликование правовых актов
ОФИЦИАЛЬНОЕ ОПУБЛИКОВАНИЕ
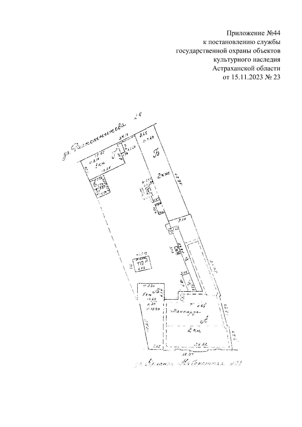
Постановление Службы государственной охраны объектов культурного наследия Астраханской области от 15.11.2023 № 23
"Об установлении границ территорий объектов культурного наследия, расположенных в городе Астрахани"
(Зарегистрирован 15.11.2023 № 302/23/23)
Номер опубликования: 3001202311230001
Дата опубликования: 23.11.2023
Страница №68 из 118:
Увеличить