Официальное опубликование правовых актов
ОФИЦИАЛЬНОЕ ОПУБЛИКОВАНИЕ
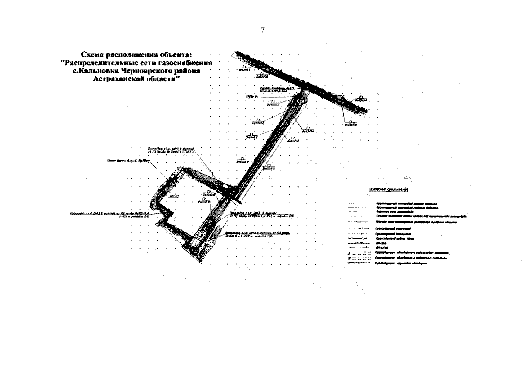
Постановление Правительства Астраханской области от 26.12.2025 № 863-П
"О внесении изменений в постановление Правительства Астраханской области от 23.12.2022 № 707-П"
Номер опубликования: 3000202512300013
Дата опубликования: 30.12.2025
Страница №3995 из 4006:
Увеличить