Официальное опубликование правовых актов
ОФИЦИАЛЬНОЕ ОПУБЛИКОВАНИЕ
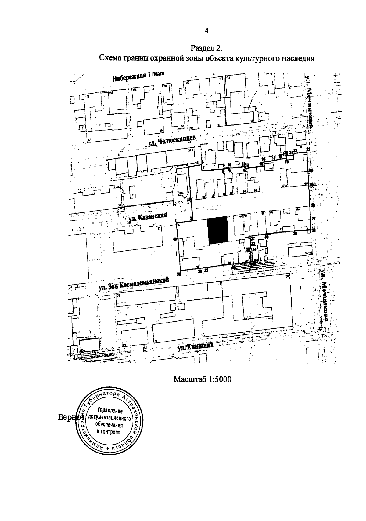
Распоряжение Правительства Астраханской области от 12.07.2024 № 256-Пр
"Об установлении зоны охраны объекта культурного наследия регионального значения "Дом жилой, нач. XX в.", расположенного по адресу: Астраханская область, г. Астрахань, ул. Казанская, 92 (Лит. "А", "а"), и утверждении требований к градостроительным регламентам в границах данной зоны"
Номер опубликования: 3000202407150009
Дата опубликования: 15.07.2024
Страница №6 из 8:
Увеличить