Официальное опубликование правовых актов
ОФИЦИАЛЬНОЕ ОПУБЛИКОВАНИЕ
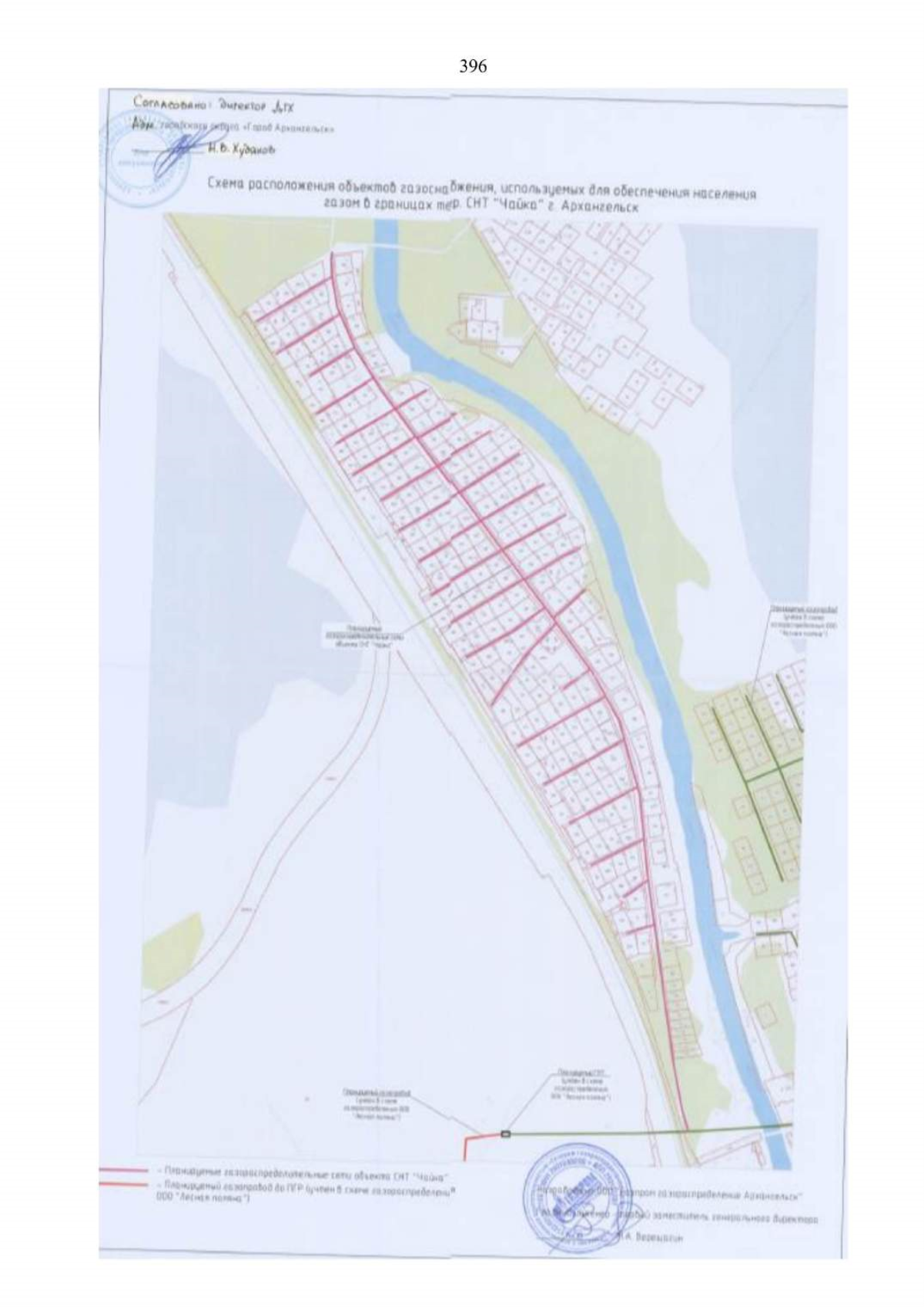
Постановление Правительства Архангельской области от 20.08.2025 № 719-пп
"О внесении изменений в региональную программу газификации жилищно-коммунального хозяйства, промышленных и иных организаций в Архангельской области на 2021 – 2030 годы"
Номер опубликования: 2900202508220001
Дата опубликования: 22.08.2025
Страница №397 из 401:
Увеличить