Официальное опубликование правовых актов
ОФИЦИАЛЬНОЕ ОПУБЛИКОВАНИЕ
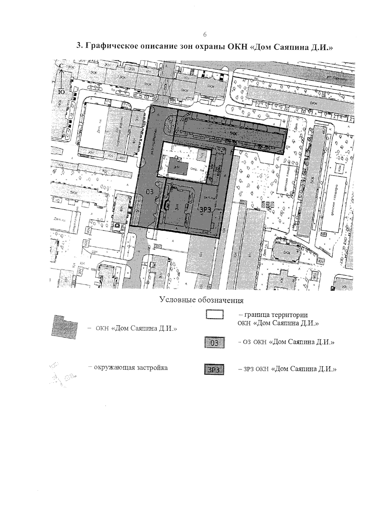
Постановление Правительства Амурской области от 18.03.2025 № 203
"Об установлении зон охраны объекта культурного наследия регионального значения "Дом Саяпина Д.И.", 1914 г. (Амурская область, г. Благовещенск, ул. Островского, д. 43) и утверждении требований к градостроительным регламентам в границах территорий данных зон"
Номер опубликования: 2800202503210011
Дата опубликования: 21.03.2025
Страница №7 из 7:
Увеличить