Официальное опубликование правовых актов
ОФИЦИАЛЬНОЕ ОПУБЛИКОВАНИЕ
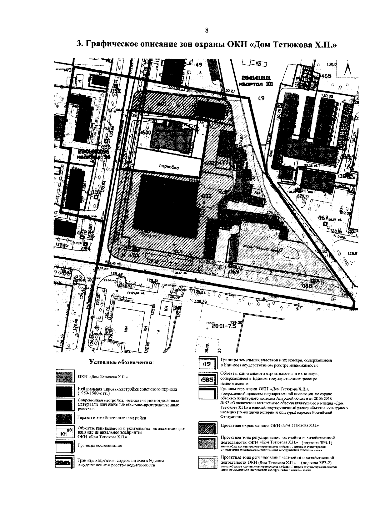
Постановление Правительства Амурской области от 16.07.2024 № 569
"Об установлении зон охраны объекта культурного наследия регионального значения "Дом Тетюкова Х.П." (конец XIX – начало XX века, Амурская область, г. Благовещенск, ул. Первомайская, 25) и утверждении требований к градостроительным регламентам в границах территорий данных зон"
Номер опубликования: 2800202407220005
Дата опубликования: 22.07.2024
Страница №9 из 9:
Увеличить