Официальное опубликование правовых актов
ОФИЦИАЛЬНОЕ ОПУБЛИКОВАНИЕ
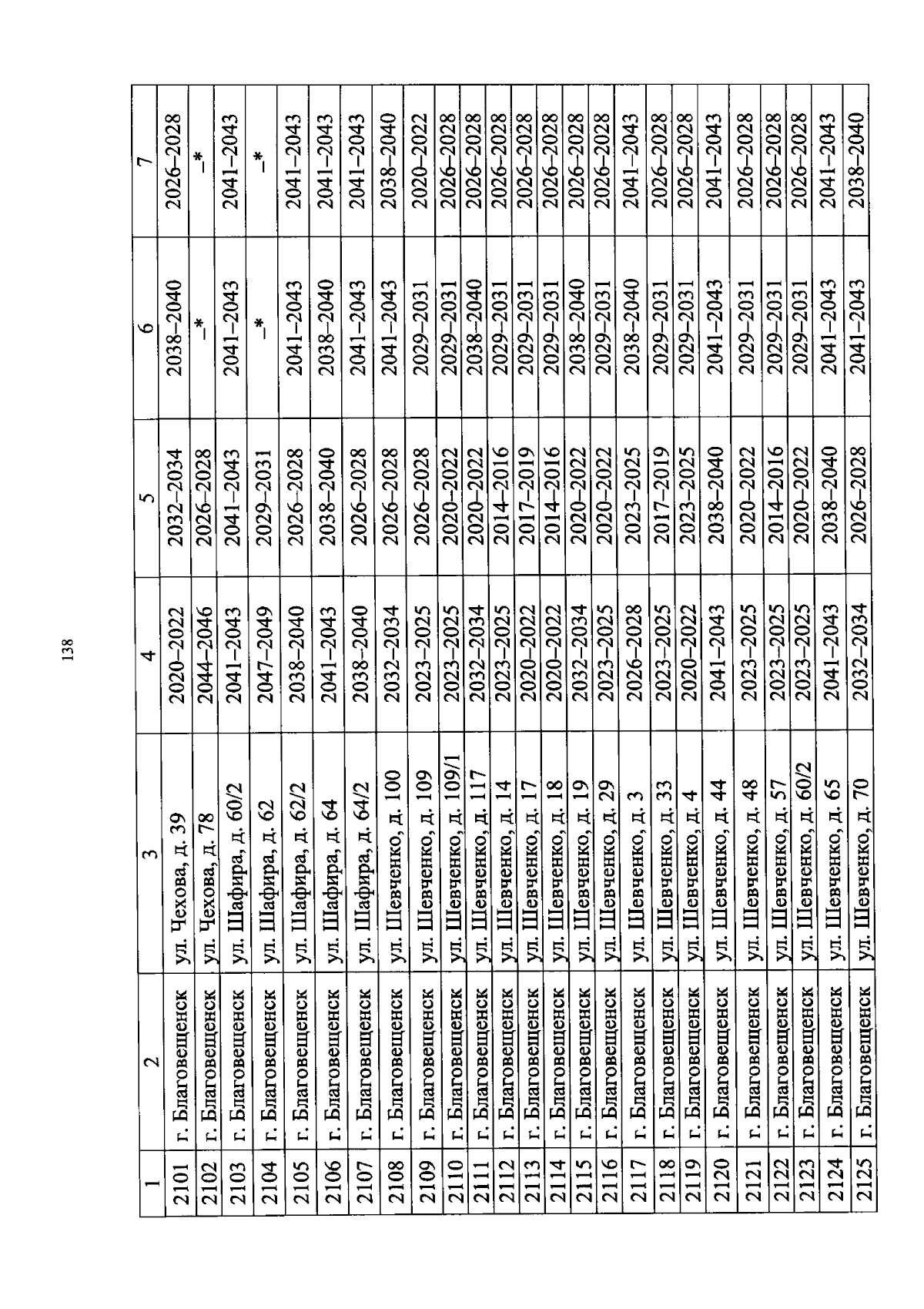
Постановление Правительства Амурской области от 22.01.2024 № 20
"О внесении изменений в постановление Правительства Амурской области от 23.01.2014 № 26"
Номер опубликования: 2800202401250003
Дата опубликования: 25.01.2024
Страница №139 из 312:
Увеличить