Официальное опубликование правовых актов
ОФИЦИАЛЬНОЕ ОПУБЛИКОВАНИЕ
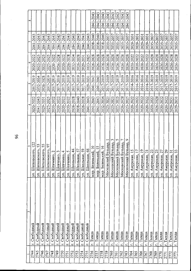
Постановление Правительства Амурской области от 30.11.2016 № 539
"О внесении изменений в постановление Правительства области от 23.01.2014 № 26"
Номер опубликования: 2800201612060001
Дата опубликования: 06.12.2016
Страница №99 из 174:
Увеличить