Официальное опубликование правовых актов
ОФИЦИАЛЬНОЕ ОПУБЛИКОВАНИЕ
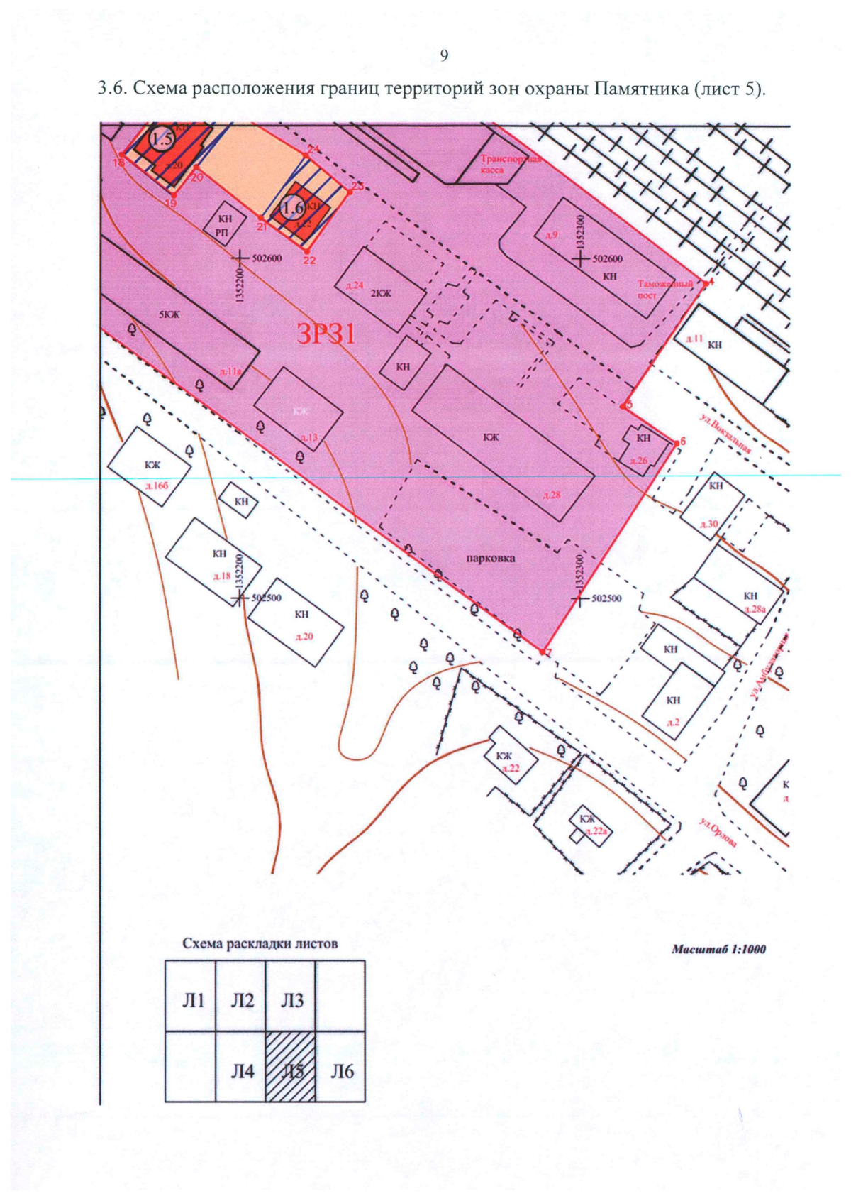
Постановление Правительства Приморского края от 23.09.2025 № 732-пп
"Об установлении зон охраны объекта культурного наследия (памятника истории и культуры) народов Российской Федерации регионального значения "Ансамбль застройки улицы Вокзальной", 1898-1902 гг., начало XX в., утверждении требований к градостроительным регламентам в границах территорий данных зон"
Номер опубликования: 2501202509240001
Дата опубликования: 24.09.2025
Страница №11 из 18:
Увеличить