Официальное опубликование правовых актов
ОФИЦИАЛЬНОЕ ОПУБЛИКОВАНИЕ
Приказ Инспекции по охране объектов культурного наследия Приморского края от 09.06.2025 № 222
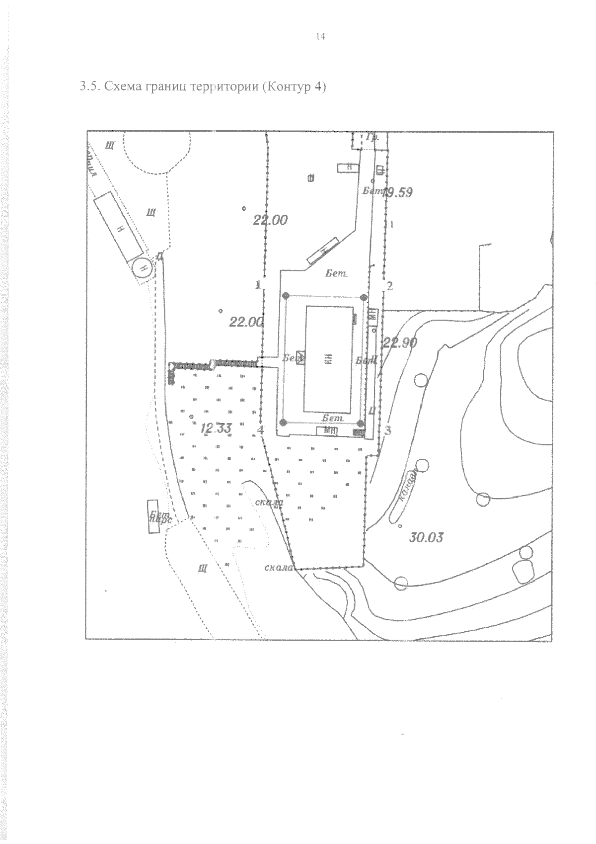
"Об утверждении границ территории выявленного объекта культурного наследия "Ансамбль застройки военного городка 35-го Восточно-Сибирского стрелкового полка", расположенного по адресу (местонахождение): Приморский край, г. Владивосток, остров Русский, полуостров Саперный, на восточном и северо-восточном берегах бухты Жданко, на мысу Мелководный (Русский остров, юго-восточная часть бухты Новик)"
(Зарегистрирован 09.06.2025 № 2318)
Номер опубликования: 2501202506100003
Дата опубликования: 10.06.2025
Страница №14 из 14:
Увеличить