Официальное опубликование правовых актов
ОФИЦИАЛЬНОЕ ОПУБЛИКОВАНИЕ
Приказ Министерства культуры, по делам национальностей и архивного дела Чувашской Республики от 08.12.2025 № 01-05/598
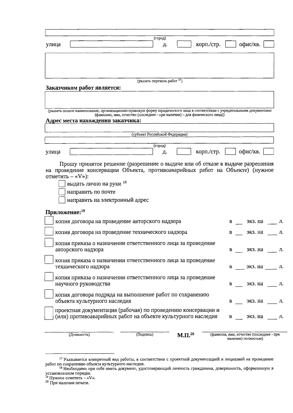
"Об утверждении Административного регламента Министерства культуры, по делам национальностей и архивного дела Чувашской Республики по предоставлению государственной услуги "Выдает задание и разрешение на проведение работ по сохранению объекта культурного наследия (памятника истории и культуры) федерального значения (за исключением отдельных объектов культурного наследия (памятников истории и культуры) федерального значения, перечень которых утверждается Правительством Российской Федерации), объекта культурного наследия (памятника истории и культуры) регионального (республиканского) значения, выявленного объекта культурного наследия"
(Зарегистрирован 30.12.2025 № 10932)
Номер опубликования: 2101202512310014
Дата опубликования: 31.12.2025
Страница №25 из 27:
Увеличить