Постановление Правительства Республики Хакасия от 15.12.2017 № 662
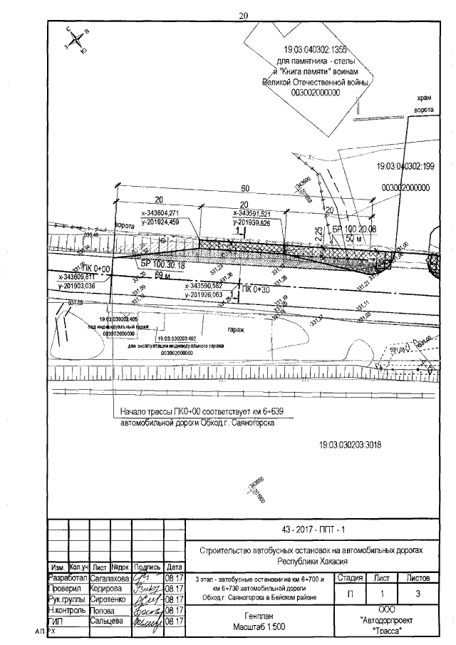
"Об утверждении проекта планировки и проекта межевания территории "3 этап – автобусные остановки на км 6+700 и км 6+730 автомобильной дороги "Обход г. Саяногорска" в Бейском районе"
"Об утверждении проекта планировки и проекта межевания территории "3 этап – автобусные остановки на км 6+700 и км 6+730 автомобильной дороги "Обход г. Саяногорска" в Бейском районе"
Номер опубликования: 1900201712190005
Дата опубликования:
19.12.2017
