Постановление Правительства Удмуртской Республики от 20.08.2025 № 495
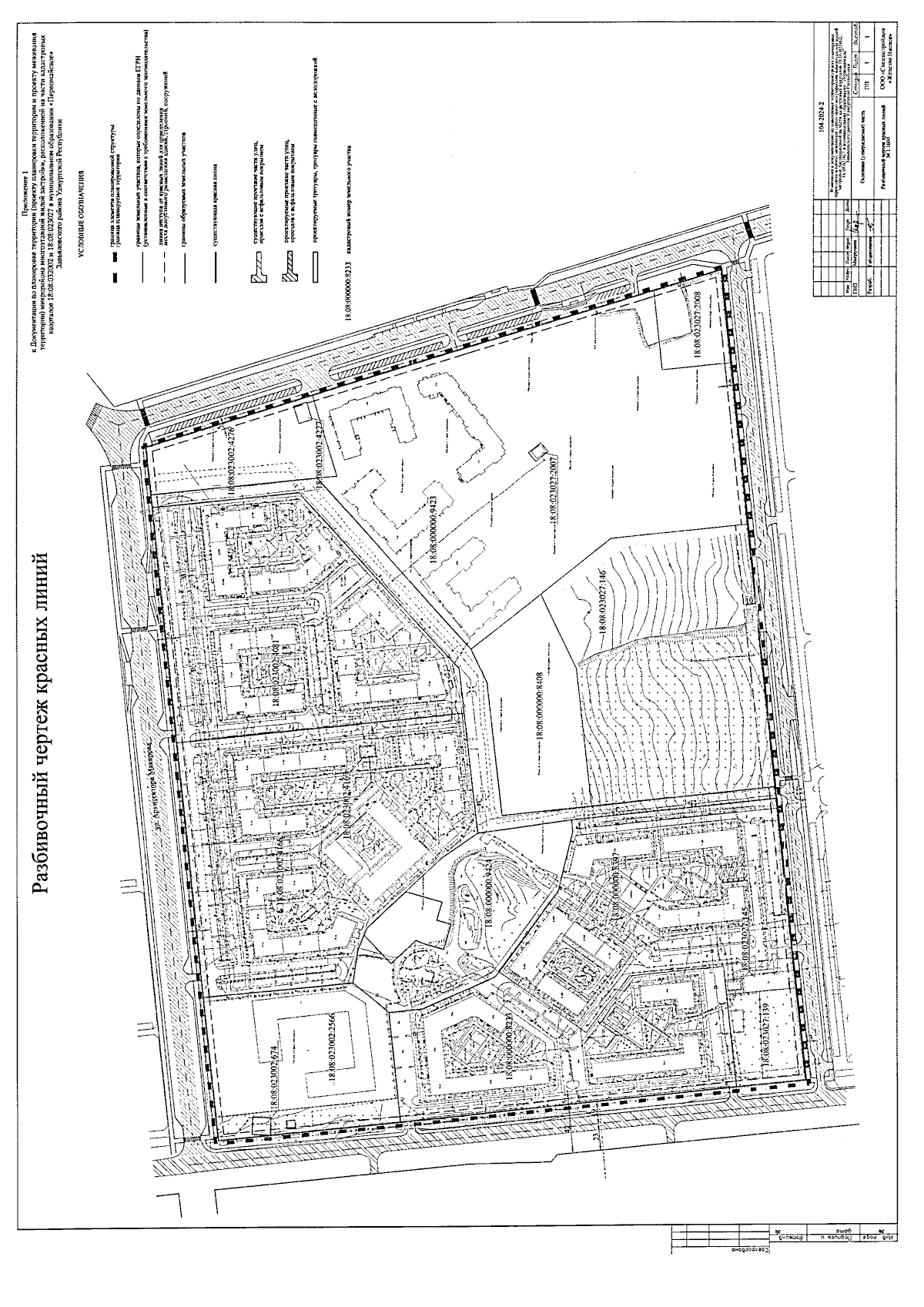
"О внесении изменения в распоряжение Правительства Удмуртской Республики от 20 апреля 2021 года № 392-р "Об утверждении Документации по планировке территории (проекта планировки территории и проекта межевания территории) микрорайона многоэтажной жилой застройки, расположенной на части кадастровых кварталов 18:08:032002 и 18:08:023027 в муниципальном образовании "Первомайское" Завьяловского района Удмуртской Республики"
"О внесении изменения в распоряжение Правительства Удмуртской Республики от 20 апреля 2021 года № 392-р "Об утверждении Документации по планировке территории (проекта планировки территории и проекта межевания территории) микрорайона многоэтажной жилой застройки, расположенной на части кадастровых кварталов 18:08:032002 и 18:08:023027 в муниципальном образовании "Первомайское" Завьяловского района Удмуртской Республики"
Номер опубликования: 1800202508250008
Дата опубликования:
25.08.2025
