Официальное опубликование правовых актов
ОФИЦИАЛЬНОЕ ОПУБЛИКОВАНИЕ
Постановление Правительства Удмуртской Республики от 03.02.2023 № 61
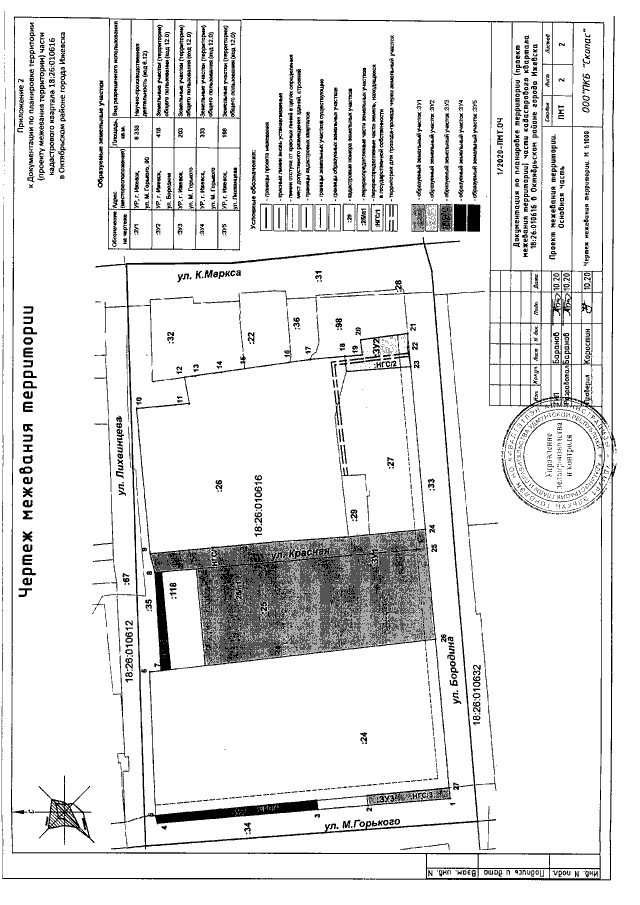
"Об утверждении Документации по планировке территории (проекта межевания территории) части кадастрового квартала 18:26:010616 в Октябрьском районе города Ижевска"
Номер опубликования: 1800202302080008
Дата опубликования: 08.02.2023
Страница №9 из 9:
Увеличить