Официальное опубликование правовых актов
ОФИЦИАЛЬНОЕ ОПУБЛИКОВАНИЕ
Постановление Правительства Удмуртской Республики от 14.11.2022 № 614
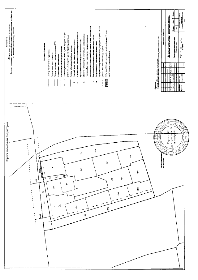
"Об утверждении Документации по планировке территории (проекта межевания территории) части кадастрового квартала 18:26:040586 в Ленинском районе города Ижевска"
Номер опубликования: 1800202211210002
Дата опубликования: 21.11.2022
Страница №7 из 7:
Увеличить