Постановление Правительства Удмуртской Республики от 13.10.2022 № 551
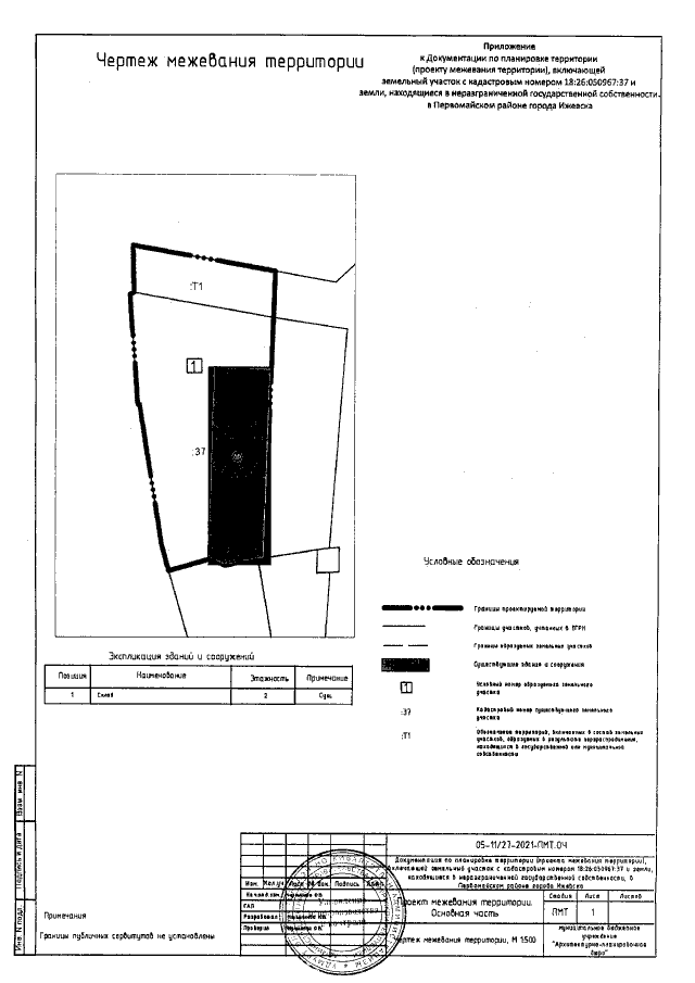
"Об утверждении Документации по планировке территории (проекта межевания территории), включающей земельный участок с кадастровым номером 18:26:050967:37 и земли, находящиеся в неразграниченной государственной собственности, в Первомайском районе города Ижевска"
"Об утверждении Документации по планировке территории (проекта межевания территории), включающей земельный участок с кадастровым номером 18:26:050967:37 и земли, находящиеся в неразграниченной государственной собственности, в Первомайском районе города Ижевска"
Номер опубликования: 1800202210170001
Дата опубликования:
17.10.2022
