Официальное опубликование правовых актов
ОФИЦИАЛЬНОЕ ОПУБЛИКОВАНИЕ
Приказ Министерства транспорта и дорожного хозяйства Республики Саха (Якутия) от 14.09.2021 № ОД-297
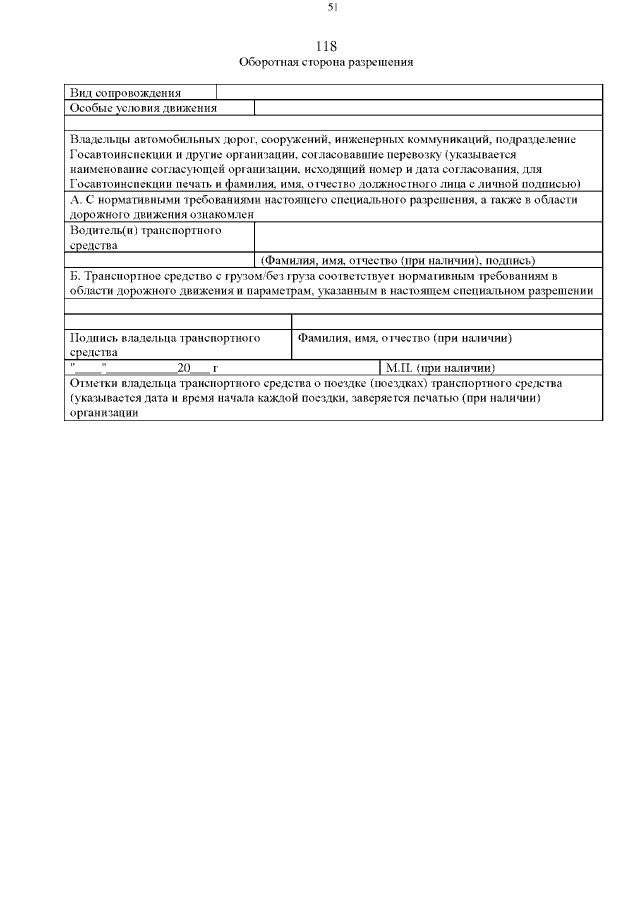
"Об утверждении Административного регламента предоставления Министерством транспорта и дорожного хозяйства Республики Саха (Якутия) государственной услуги " Выдача специального разрешения на движение по автомобильным дорогам транспортного средства, осуществляющего перевозку тяжеловесных и (или) крупногабаритных грузов, в случае если маршрут, часть маршрута транспортного средства проходят по автомобильным дорогам регионального или межмуниципального значения, участкам таких автомобильных дорог, по автомобильным дорогам местного значения, расположенным на территориях двух и более муниципальных образований (муниципальных районов, городских округов), при условии, что маршрут такого транспортного средства проходит в границах Республики Саха (Якутия) и указанный маршрут, часть маршрута не проходят по автомобильным дорогам федерального значения, участкам таких автомобильных дорог"
(Зарегистрирован 29.09.2021 № RU140142022119)
Номер опубликования: 1401202109300004
Дата опубликования: 30.09.2021
Страница №54 из 59:
Увеличить