Официальное опубликование правовых актов
ОФИЦИАЛЬНОЕ ОПУБЛИКОВАНИЕ
Приказ Управления архитектуры и градостроительства при Главе Республики Саха (Якутия) от 20.12.2019 № 234
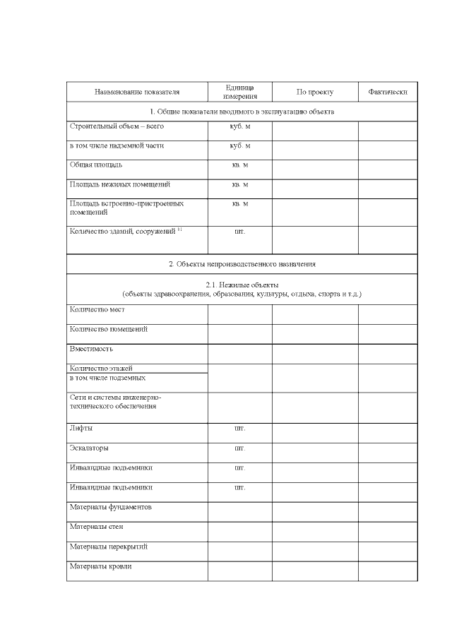
"Об утверждении административного регламента Управления архитектуры и градостроительства при Главе Республики Саха (Якутия) по предоставлению государственной услуги "Выдача разрешения на ввод объекта в эксплуатацию, расположенного на территории двух и более муниципальных образований (муниципальных районов, городских округов)"
(Зарегистрирован 09.01.2020 № RU140142020110)
Номер опубликования: 1401202001160004
Дата опубликования: 16.01.2020
Страница №34 из 39:
Увеличить