Приказ Департамента Республики Саха (Якутия) по охране объектов культурного наследия от 27.11.2019 № 328-ОД
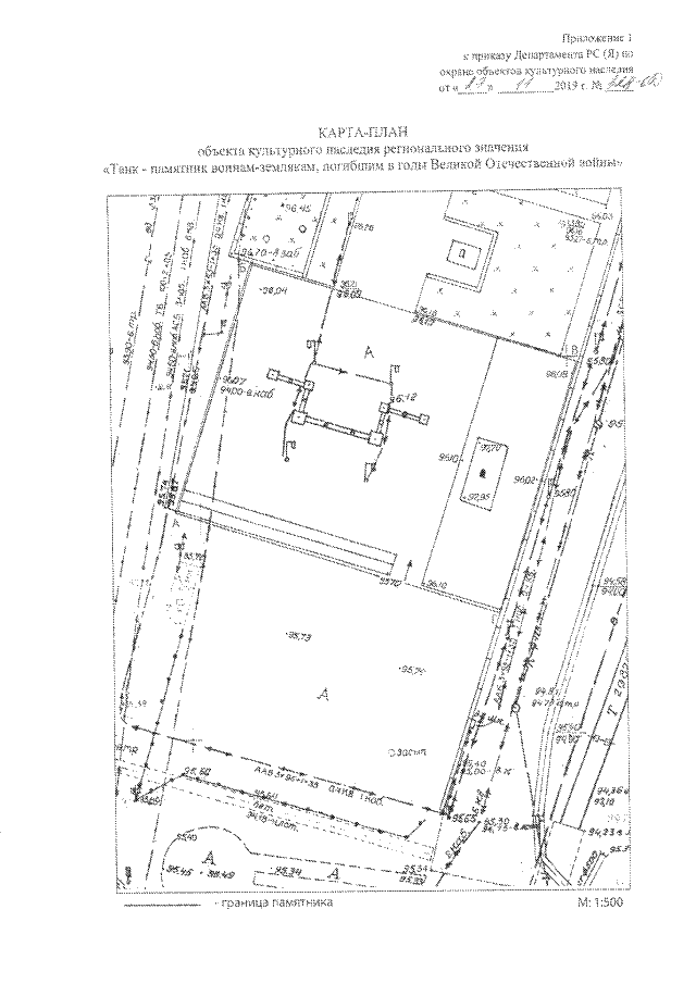
"Об утверждении границ территории объекта культурного наследия регионального значения "Танк-памятник воинам-землякам, погибшим в годы Великой отечественной войны (1941-1945)"
(Зарегистрирован 12.12.2019 № RU140142019953)
"Об утверждении границ территории объекта культурного наследия регионального значения "Танк-памятник воинам-землякам, погибшим в годы Великой отечественной войны (1941-1945)"
(Зарегистрирован 12.12.2019 № RU140142019953)
Номер опубликования: 1401201912160022
Дата опубликования:
16.12.2019
