Официальное опубликование правовых актов
ОФИЦИАЛЬНОЕ ОПУБЛИКОВАНИЕ
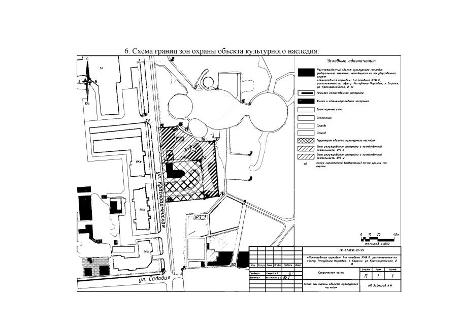
Приказ Министерства культуры, национальной политики и архивного дела Республики Мордовия от 09.03.2023 № 97
"Об утверждении зон охраны, режимов использования земель и требований к градостроительным регламентам в границах территории зон охраны объекта культурного наследия федерального значения "Николаевская церковь"
Номер опубликования: 1301202303140003
Дата опубликования: 14.03.2023
Страница №7 из 11:
Увеличить