Официальное опубликование правовых актов
ОФИЦИАЛЬНОЕ ОПУБЛИКОВАНИЕ
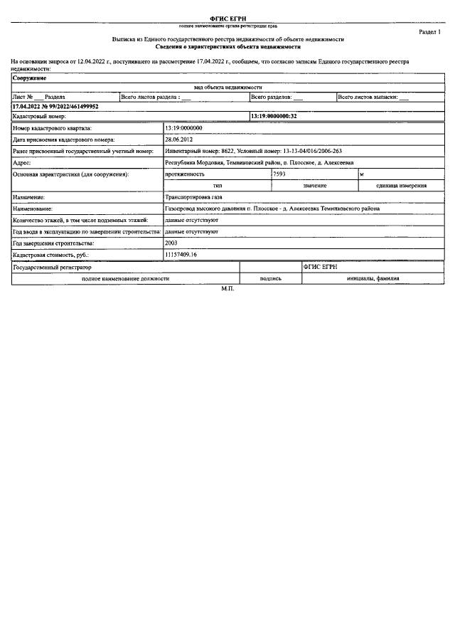
Постановление Правительства Республики Мордовия от 29.08.2022 № 587
"Об утверждении границы охранной зоны газораспределительной сети"
Номер опубликования: 1300202208300013
Дата опубликования: 30.08.2022
Страница №20 из 24:
Увеличить