Официальное опубликование правовых актов
ОФИЦИАЛЬНОЕ ОПУБЛИКОВАНИЕ
Постановление Правительства Республики Марий Эл от 07.11.2023 № 550
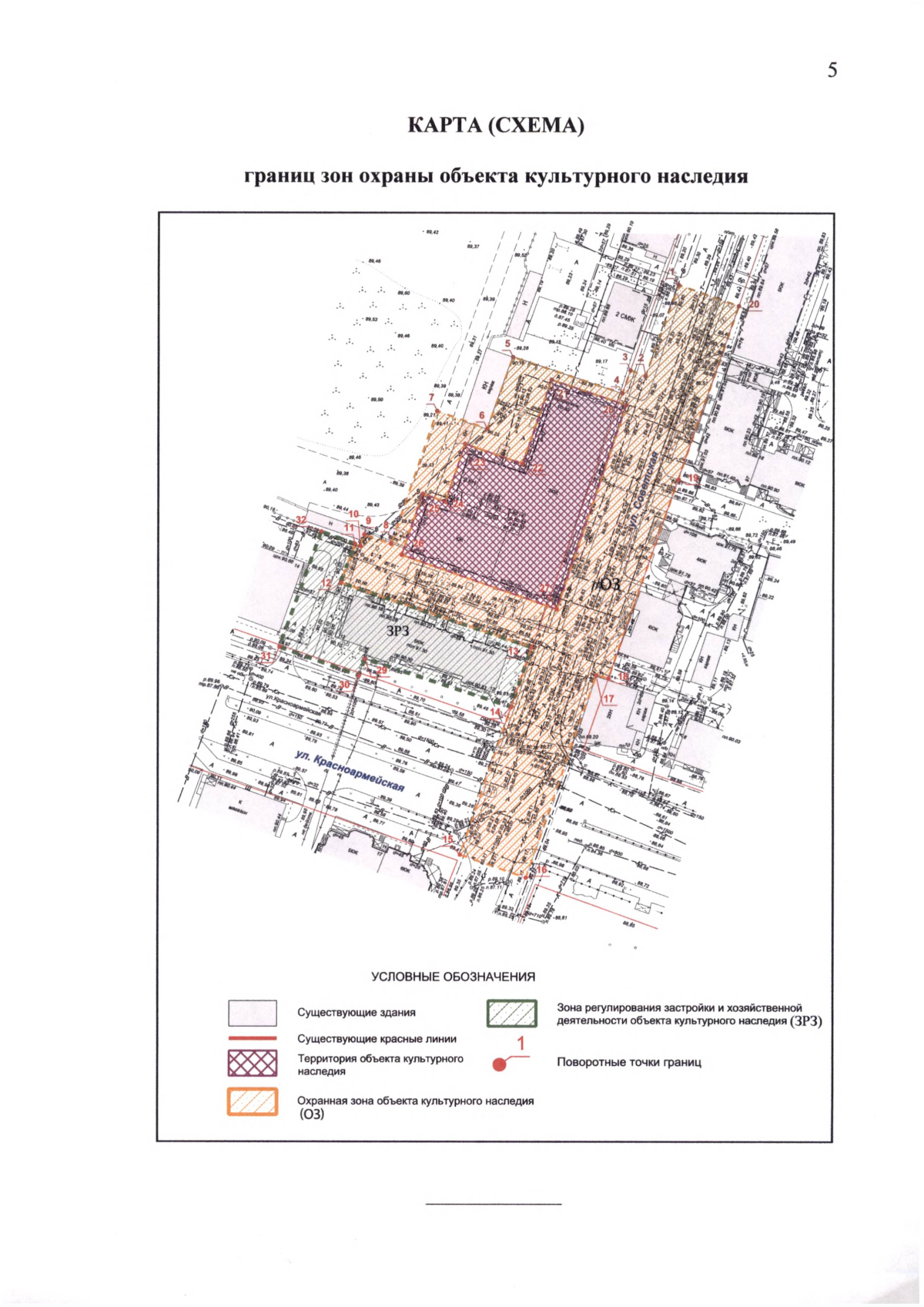
"Об установлении зон охраны объекта культурного наследия (памятника истории и культуры) народов Российской Федерации регионального значения "Здание педучилища" (Республика Марий Эл, г. Йошкар-Ола, ул. Советская, д. 88) и утверждении требований к градостроительным регламентам в границах территорий данных зон"
Номер опубликования: 1200202311090001
Дата опубликования: 09.11.2023
Страница №7 из 13:
Увеличить