Приказ Управления по охране объектов культурного наследия Республики Карелия от 12.04.2024 № 128/УОКН-П
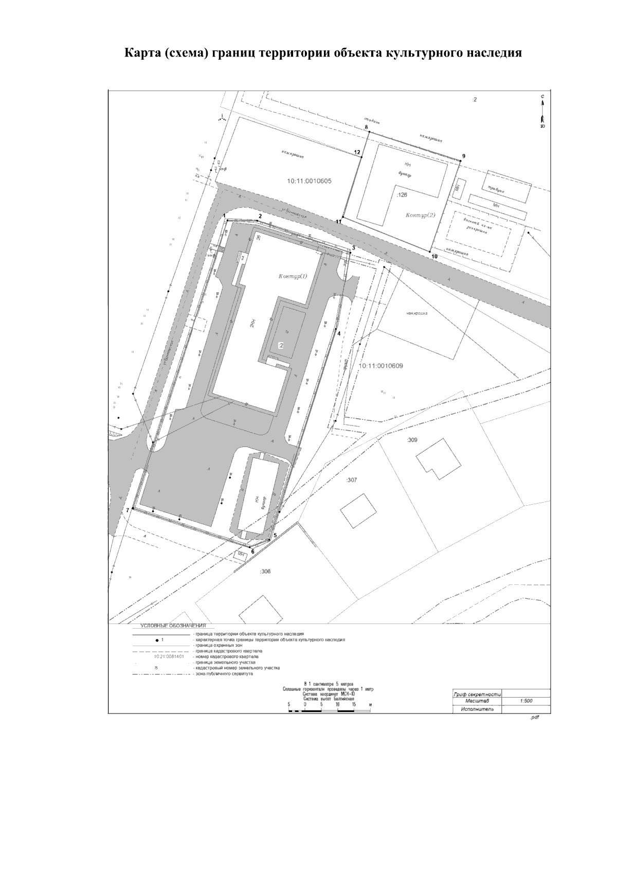
"Об утверждении границ территории объекта культурного наследия регионального значения «Здание, в котором в 1941–1944 гг. размещался штаб Карельского фронта», расположенного по адресу: Республика Карелия, Беломорский район, г. Беломорск, ул. Банковская, д. 26"
(Зарегистрирован 12.04.2024 № 309)
"Об утверждении границ территории объекта культурного наследия регионального значения «Здание, в котором в 1941–1944 гг. размещался штаб Карельского фронта», расположенного по адресу: Республика Карелия, Беломорский район, г. Беломорск, ул. Банковская, д. 26"
(Зарегистрирован 12.04.2024 № 309)
Номер опубликования: 1001202404120007
Дата опубликования:
12.04.2024
