Официальное опубликование правовых актов
ОФИЦИАЛЬНОЕ ОПУБЛИКОВАНИЕ
Приказ Управления по охране объектов культурного наследия Республики Карелия от 28.02.2024 № 58/УОКН-П
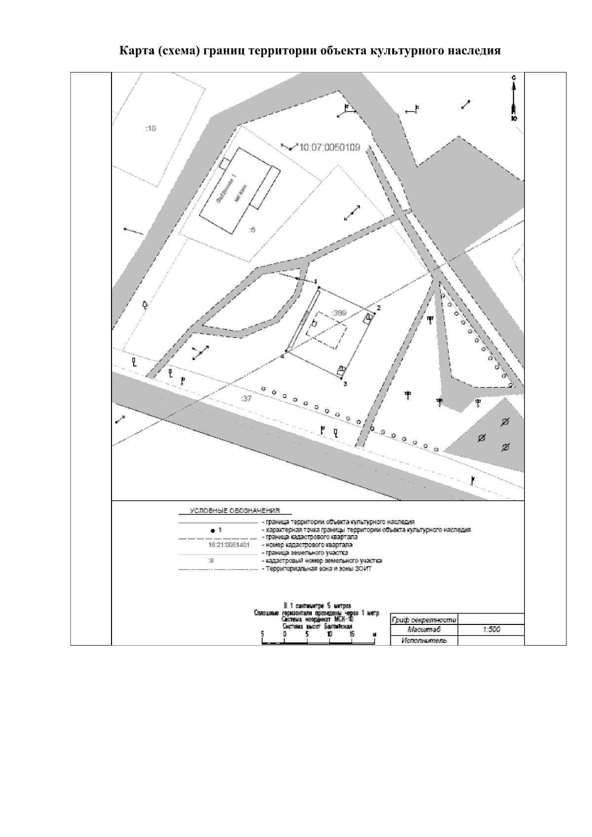
"Об утверждении границ территории объекта культурного наследия регионального значения "Братская могила воинов, погибших в годы Великой Отечественной войны 1941–1945 гг.", расположенного по адресу: Республика Карелия, г. Сортавала, пос. Хелюля"
(Зарегистрирован 29.02.2024 № 149)
Номер опубликования: 1001202402290010
Дата опубликования: 29.02.2024
Страница №5 из 5:
Увеличить