Официальное опубликование правовых актов
ОФИЦИАЛЬНОЕ ОПУБЛИКОВАНИЕ
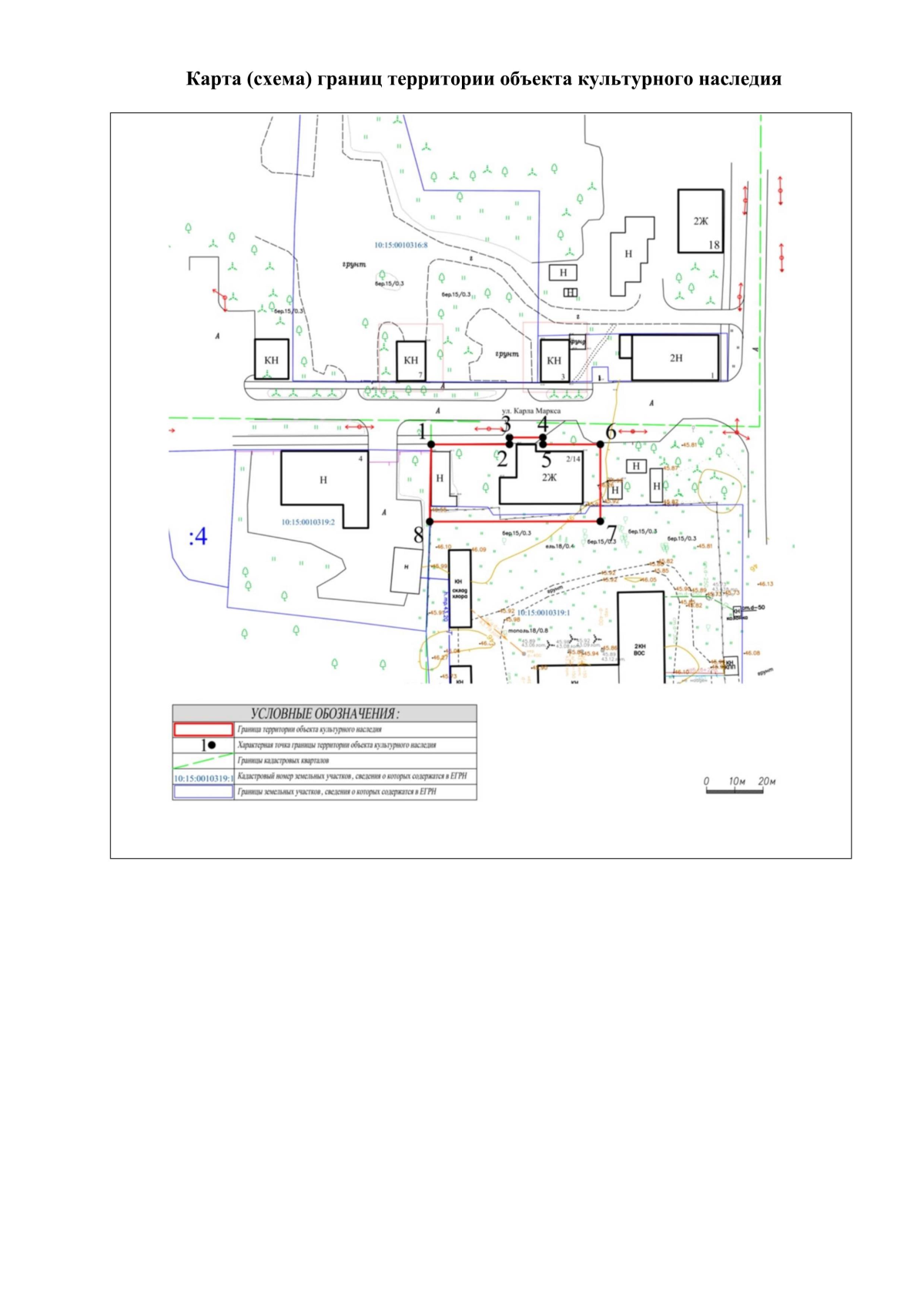
Приказ Управления по охране объектов культурного наследия Республики Карелия от 13.10.2023 № 291/УОКН-П
"Об утверждении границ территорий объектов культурного наследия"
(Зарегистрирован 13.10.2023 № 797)
Номер опубликования: 1001202310160005
Дата опубликования: 16.10.2023
Страница №9 из 21:
Увеличить