Официальное опубликование правовых актов
ОФИЦИАЛЬНОЕ ОПУБЛИКОВАНИЕ
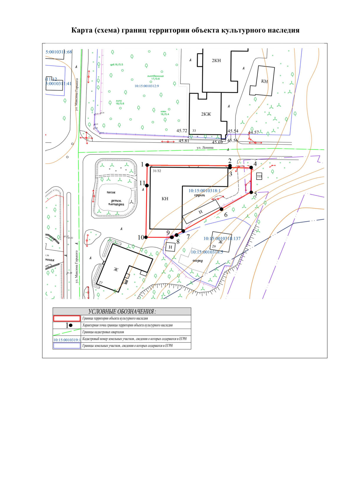
Приказ Управления по охране объектов культурного наследия Республики Карелия от 13.10.2023 № 290/УОКН-П
"Об утверждении границ территорий объектов культурного наследия"
(Зарегистрирован 13.10.2023 № 796)
Номер опубликования: 1001202310160001
Дата опубликования: 16.10.2023
Страница №11 из 14:
Увеличить