Официальное опубликование правовых актов
ОФИЦИАЛЬНОЕ ОПУБЛИКОВАНИЕ
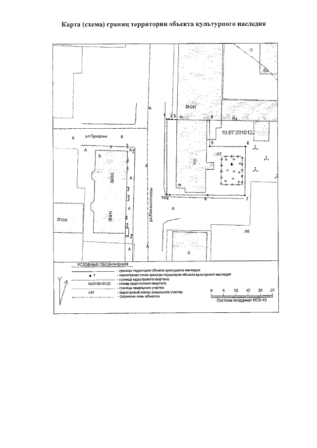
Приказ Управления по охране объектов культурного наследия Республики Карелия от 27.05.2021 № 347
"О включении выявленного объекта культурного наследия в единый государственный реестр объектов культурного наследия (памятников истории и культуры) народов Российской Федерации, утверждении предмета охраны и утверждении границ его территории"
Номер опубликования: 1001202105280006
Дата опубликования: 28.05.2021
Страница №5 из 5:
Увеличить