Официальное опубликование правовых актов
ОФИЦИАЛЬНОЕ ОПУБЛИКОВАНИЕ
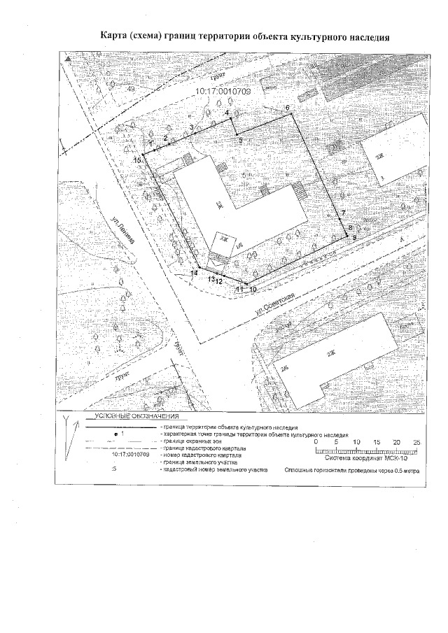
Приказ Управления по охране объектов культурного наследия Республики Карелия от 17.05.2021 № 327
"Об утверждении границ территории объекта культурного наследия регионального значения "Дом инженера Моберга", 1925 г., расположенного по адресу: Республика Карелия, Калевальский район, п. Калевала, ул. Ленина, д. 8"
Номер опубликования: 1001202105200022
Дата опубликования: 20.05.2021
Страница №5 из 5:
Увеличить