Официальное опубликование правовых актов
ОФИЦИАЛЬНОЕ ОПУБЛИКОВАНИЕ
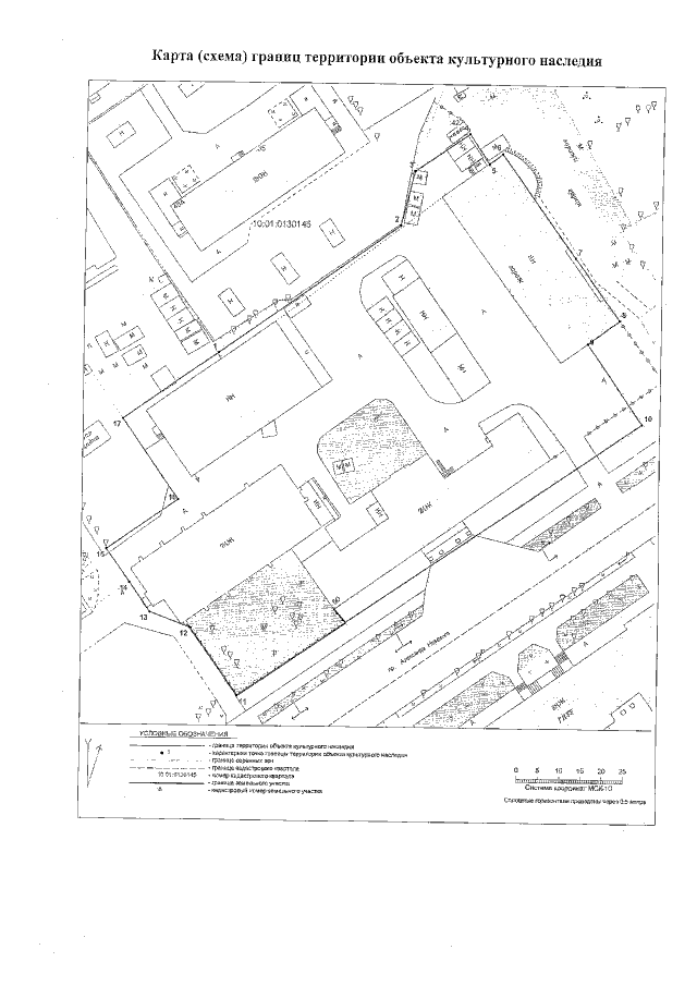
Приказ Управления по охране объектов культурного наследия Республики Карелия от 17.05.2021 № 336
"Об утверждении границ территории объекта культурного наследия регионального значения "Здание Карельского филиала АН СССР, в котором работали советские ученые", 1946–1966 гг., расположенного по адресу: Республика Карелия, г. Петрозаводск, проспект Александра Невского, д. 50"
Номер опубликования: 1001202105200011
Дата опубликования: 20.05.2021
Страница №5 из 5:
Увеличить