Приказ Управления по охране объектов культурного наследия Республики Карелия от 17.05.2021 № 340
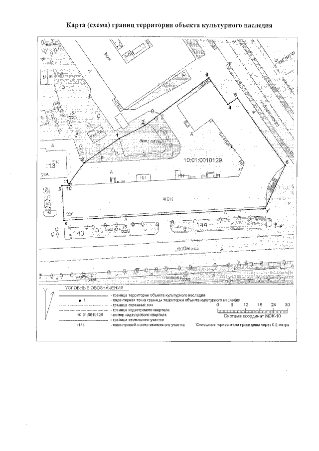
"Об утверждении границ территории объекта культурного наследия регионального значения "Дом жилой со встроенными общественно–торговыми помещениями, 1952 г.", 1952 г., расположенного по адресу: Республика Карелия, г. Петрозаводск, проспект К. Маркса, д. 22"
"Об утверждении границ территории объекта культурного наследия регионального значения "Дом жилой со встроенными общественно–торговыми помещениями, 1952 г.", 1952 г., расположенного по адресу: Республика Карелия, г. Петрозаводск, проспект К. Маркса, д. 22"
Номер опубликования: 1001202105200008
Дата опубликования:
20.05.2021
