Приказ Управления по охране объектов культурного наследия Республики Карелия от 22.03.2021 № 168
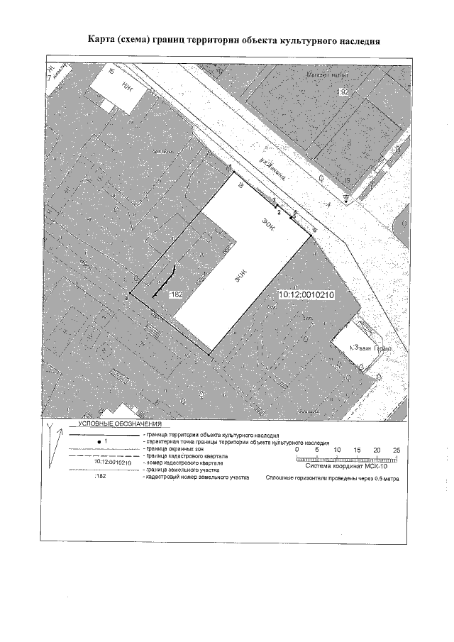
"Об утверждении границ территории объекта культурного наследия регионального значения "Ресторан с гостиницей", начало XX века, расположенного по адресу: Республика Карелия, Лахденпохский район, г. Лахденпохья, ул. Ленина, д. 13"
"Об утверждении границ территории объекта культурного наследия регионального значения "Ресторан с гостиницей", начало XX века, расположенного по адресу: Республика Карелия, Лахденпохский район, г. Лахденпохья, ул. Ленина, д. 13"
Номер опубликования: 1001202103250015
Дата опубликования:
25.03.2021
