Официальное опубликование правовых актов
ОФИЦИАЛЬНОЕ ОПУБЛИКОВАНИЕ
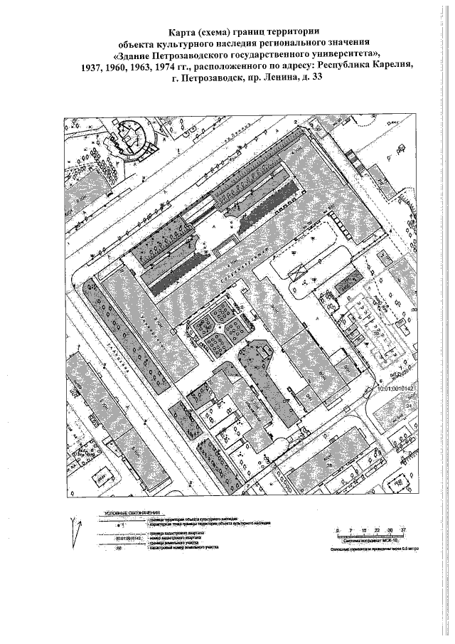
Приказ Управления по охране объектов культурного наследия Республики Карелия от 17.07.2020 № 439
"О включении выявленного объекта культурного наследия в единый государственный реестр объектов культурного наследия (памятников истории и культуры) народов Российской Федерации, утверждении предмета охраны и утверждении границ его территории"
Номер опубликования: 1001202007210004
Дата опубликования: 21.07.2020
Страница №6 из 6:
Увеличить