Официальное опубликование правовых актов
ОФИЦИАЛЬНОЕ ОПУБЛИКОВАНИЕ
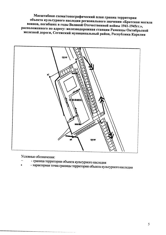
Приказ Управления по охране объектов культурного наследия Республики Карелия от 19.12.2018 № 252
"Об установлении границ территории объекта культурного наследия регионального значения "Братская могила воинов, погибших в годы Великой Отечественной войны 1941-1945гг.", расположенного по адресу: железнодорожная станция Раменцы Октябрьской железной дороги, Сегежский муниципальный район, Республика Карелия"
Номер опубликования: 1001201812210004
Дата опубликования: 21.12.2018
Страница №5 из 5:
Увеличить