Официальное опубликование правовых актов
ОФИЦИАЛЬНОЕ ОПУБЛИКОВАНИЕ
Постановление Правительства Республики Карелия от 08.04.2024 № 102-П
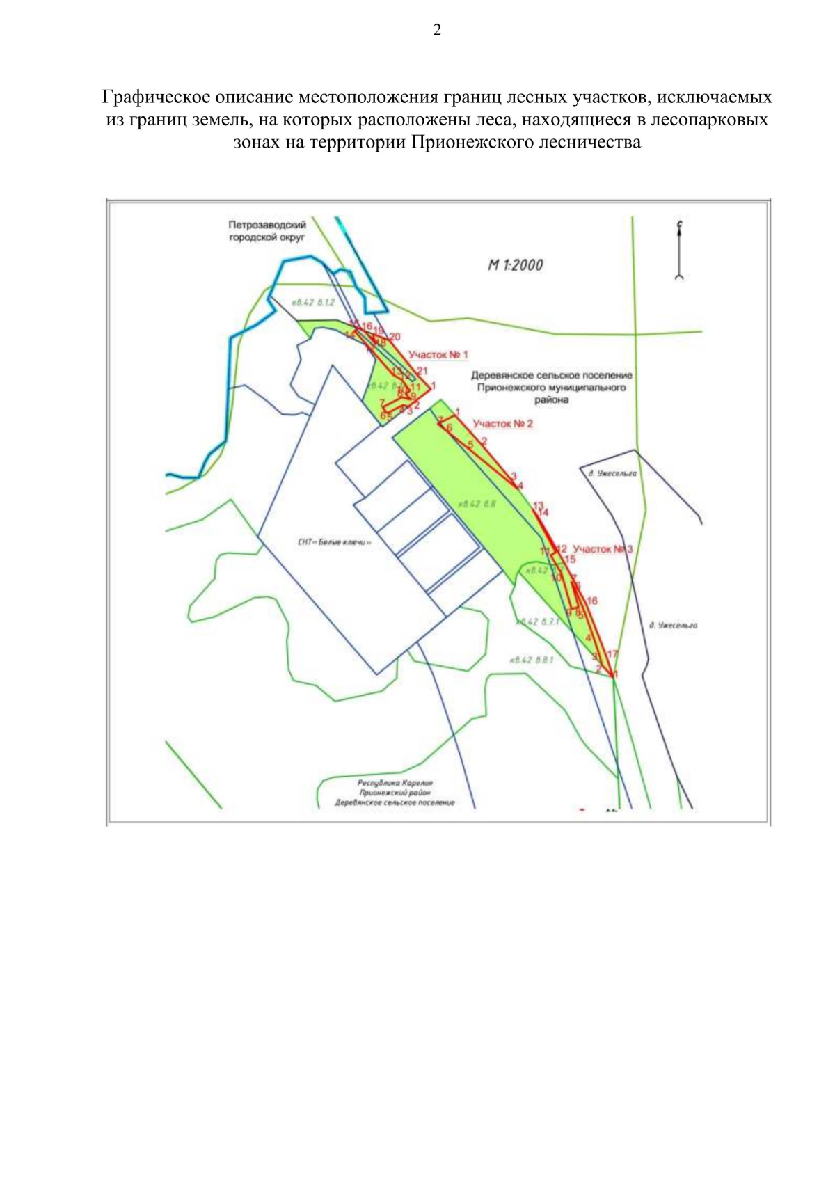
"Об изменении границ земель, на которых расположены леса, находящиеся в лесопарковых зонах на территории Прионежского лесничества Республики Карелия"
Номер опубликования: 1000202404080005
Дата опубликования: 08.04.2024
Страница №4 из 24:
Увеличить