Официальное опубликование правовых актов
ОФИЦИАЛЬНОЕ ОПУБЛИКОВАНИЕ
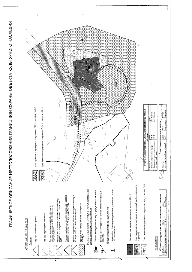
Постановление Правительства Республики Карелия от 11.01.2022 № 4-П
"Об установлении зон охраны объекта культурного наследия федерального значения "Фроловская церковь (деревянная)", 1618 г., расположенного по адресу: Республика Карелия, Олонецкий район, с. Мегрега, и утверждении требований к градостроительным регламентам в границах территорий данных зон"
Номер опубликования: 1000202201130002
Дата опубликования: 13.01.2022
Страница №11 из 25:
Увеличить