Официальное опубликование правовых актов
ОФИЦИАЛЬНОЕ ОПУБЛИКОВАНИЕ
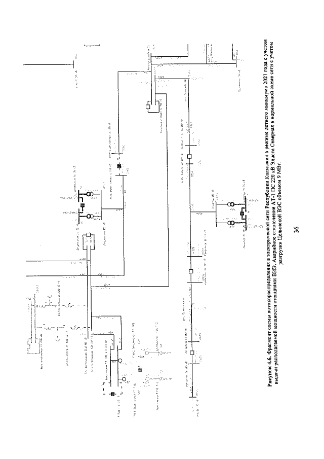
Распоряжение Главы Республики Калмыкия от 07.07.2020 № 194-рг
Номер опубликования: 0800202007090002
Дата опубликования: 09.07.2020
Страница №281 из 361:
Увеличить