Официальное опубликование правовых актов
ОФИЦИАЛЬНОЕ ОПУБЛИКОВАНИЕ
Приказ Администрации Главы Республики Бурятия и Правительства Республики Бурятия от 06.06.2024 № 98окн
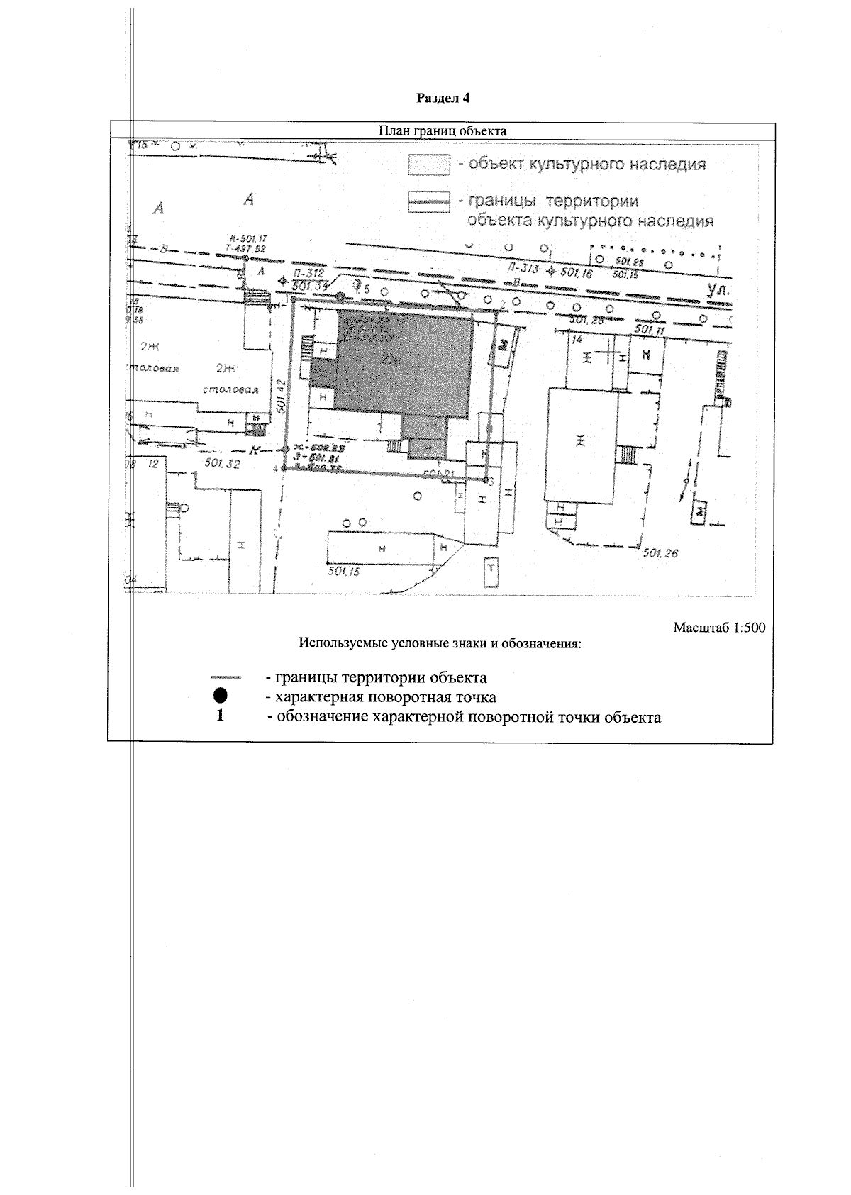
"Об уточнении сведений об объекте культурного наследия регионального значения " Усадьба c торговой лавкой Бутырина Н.А. ", расположенном по адресу: Республика Бурятия, г. Улан-Удэ, ул. Соборная, 12/1, 12/2, и утверждении границ территорий объектов культурного наследия, входящих в его состав"
(Зарегистрирован 14.06.2024 № 032024150)
Номер опубликования: 0301202406190003
Дата опубликования: 19.06.2024
Страница №6 из 6:
Увеличить