Официальное опубликование правовых актов
ОФИЦИАЛЬНОЕ ОПУБЛИКОВАНИЕ
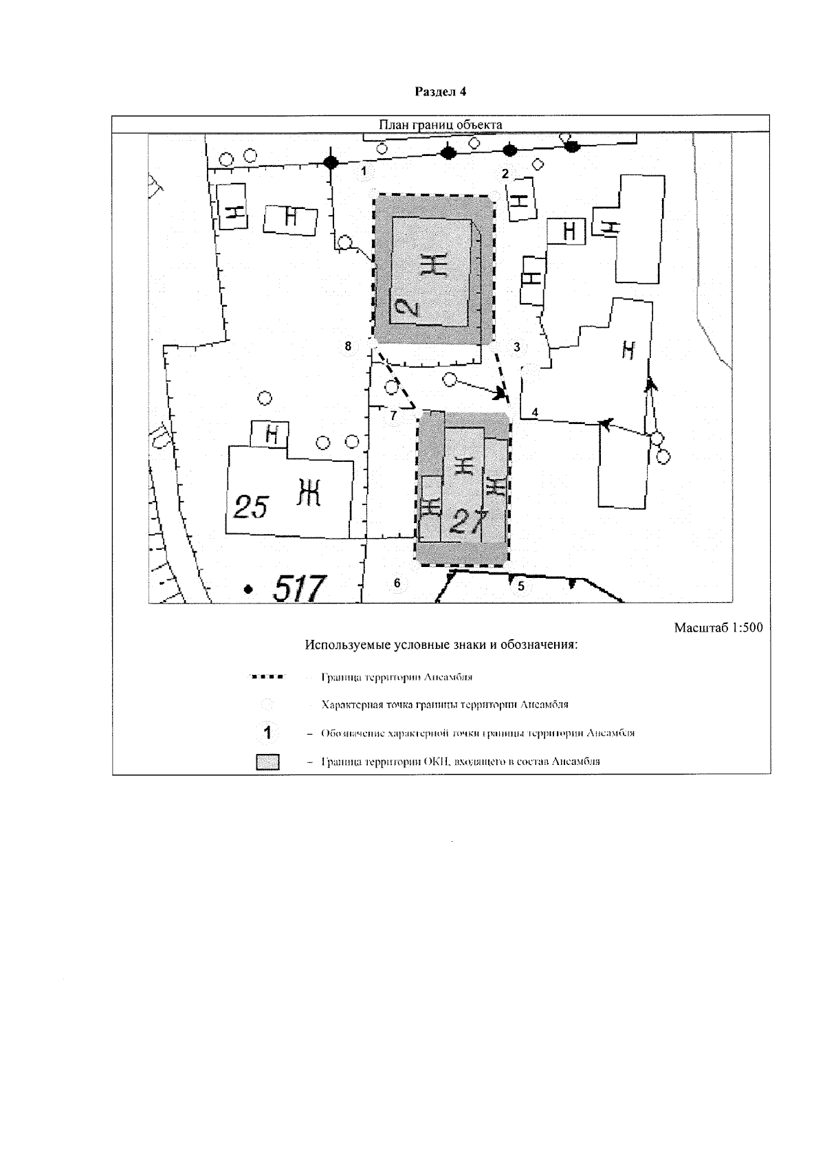
Приказ Администрации Главы Республики Бурятия и Правительства Республики Бурятия от 11.04.2024 № 74окн
"Об утверждении границ территорий объектов культурного наследия регионального значения, расположенных в г. Улан-Удэ Республики Бурятия"
(Зарегистрирован 11.04.2024 № 032024104)
Номер опубликования: 0301202404110001
Дата опубликования: 11.04.2024
Страница №36 из 38:
Увеличить