Официальное опубликование правовых актов
ОФИЦИАЛЬНОЕ ОПУБЛИКОВАНИЕ
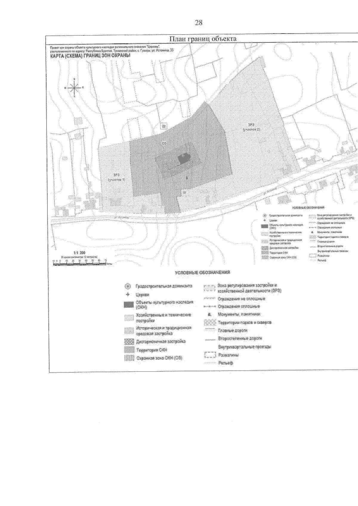
Приказ Администрации Главы Республики Бурятия и Правительства Республики Бурятия от 19.12.2023 № 926д
"Об установлении границ зон охраны объектов культурного наследия регионального значения, расположенных в Тункинском районе Республики Бурятия, и об утверждении требований к градостроительным регламентам в границах данных зон"
(Зарегистрирован 21.12.2023 № 032023634)
Номер опубликования: 0301202312280003
Дата опубликования: 28.12.2023
Страница №31 из 60:
Увеличить