Официальное опубликование правовых актов
ОФИЦИАЛЬНОЕ ОПУБЛИКОВАНИЕ
Приказ Администрации Главы Республики Бурятия и Правительства Республики Бурятия от 09.03.2022 № 156д
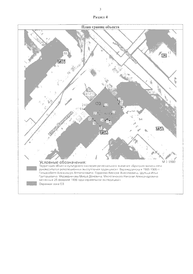
"Об утверждении границ зон охраны объектов культурного наследия регионального значения, расположенных в городе Улан-Удэ Республики Бурятия, режимов использования земель и требований к градостроительным регламентам в границах данных зон"
(Зарегистрирован 14.03.2022 № 032022072)
Номер опубликования: 0301202203170009
Дата опубликования: 17.03.2022
Страница №5 из 21:
Увеличить