Официальное опубликование правовых актов
ОФИЦИАЛЬНОЕ ОПУБЛИКОВАНИЕ
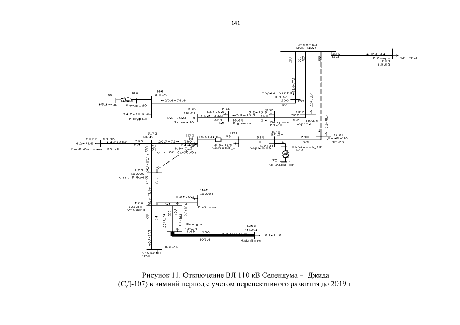
Постановление Правительства Республики Бурятия от 15.07.2015 № 358
"Об утверждении Схемы и программы развития электроэнергетики Республики Бурятия на 2016 – 2020 годы"
Номер опубликования: 0300201507160003
Дата опубликования: 16.07.2015
Страница №142 из 149:
Увеличить