Официальное опубликование правовых актов
ОФИЦИАЛЬНОЕ ОПУБЛИКОВАНИЕ
Приказ Управления по государственной охране объектов культурного наследия Республики Башкортостан от 04.02.2026 № 49
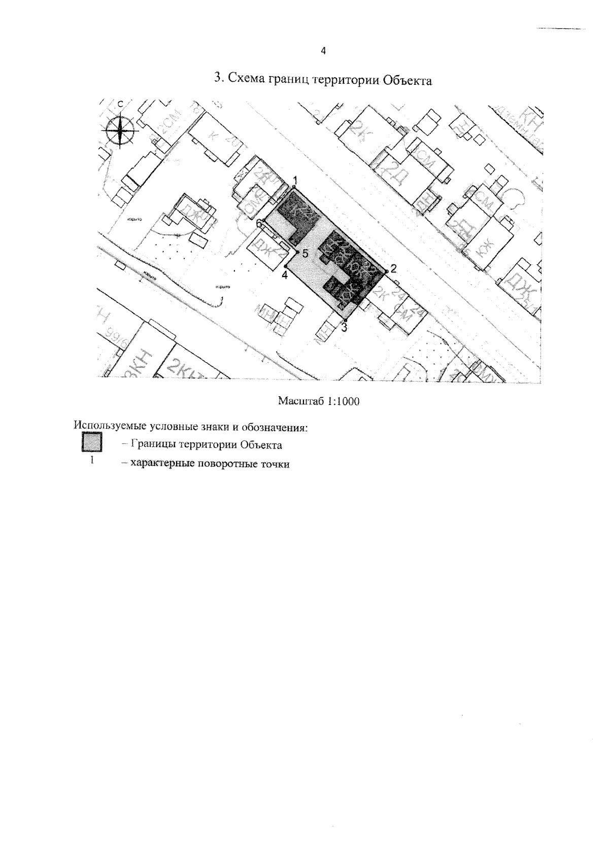
"О внесении изменений в приказ Управления по государственной охране объектов культурного наследия Республики Башкортостан от 04 декабря 2018 года № 367 "О включении выявленных объектов культурного наследия "Усадьба Безруковых с кирпичными воротами (дом западный)", 1870-е гг., расположенного по адресу: Республика Башкортостан, г. Уфа, ул. Октябрьской революции, д. 22 (литера А), "Усадьба Безруковых с кирпичными воротами (дом восточный)", 1870-е гг., расположенного по адресу: Республика Башкортостан, г. Уфа, ул. Октябрьской революции,. 22 (литера Б) в Единый государственный реестр объектов культурного наследия (памятников истории и культуры) народов Российской Федерации в качестве объектов культурного наследия регионального значения, утверждения его пообъектного состава, предмета охраны, границ и режима использования территории"
(Зарегистрирован 10.02.2026 № 25854)
Номер опубликования: 0201202602160002
Дата опубликования: 16.02.2026
Страница №6 из 7:
Увеличить