Официальное опубликование правовых актов
ОФИЦИАЛЬНОЕ ОПУБЛИКОВАНИЕ
Приказ Министерства строительства, транспорта, жилищно-коммунального и дорожного хозяйства Республики Адыгея от 18.11.2019 № 198-п
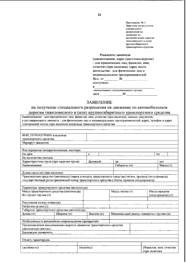
"Об утверждении Административного регламента Министерства строительства, транспорта, жилищно-коммунального и дорожного хозяйства Республики Адыгея по предоставлению государственной услуги "Выдача специальных разрешений на движение по автомобильным дорогам общего пользования регионального или межмуниципального значения тяжеловесного и (или) крупногабаритного транспортного средства в случае если маршрут, часть маршрута тяжеловесного и (или) крупногабаритного транспортного средства проходят по автомобильным дорогам регионального или межмуниципального значения, участкам таких автомобильных дорог, по автомобильным дорогам местного значения, расположенным на территориях двух и более муниципальных образований (муниципальных районов, городских округов), при условии, что маршрут указанного транспортного средства проходит в границах Республики Адыгея и маршрут, часть маршрута не проходят по автомобильным дорогам федерального значения, участкам таких автомобильных дорог"
Номер опубликования: 0101201911210001
Дата опубликования: 21.11.2019
Страница №34 из 37:
Увеличить