Официальное опубликование правовых актов
ОФИЦИАЛЬНОЕ ОПУБЛИКОВАНИЕ
Приказ Федеральной службы по экологическому, технологическому и атомному надзору от 03.12.2020 № 494
"Об утверждении Федеральных норм и правил в области промышленной безопасности "Правила безопасности при производстве, хранении и применении взрывчатых материалов промышленного назначения"
(Зарегистрирован 25.12.2020 № 61824)
Номер опубликования: 0001202012280020
Дата опубликования: 28.12.2020
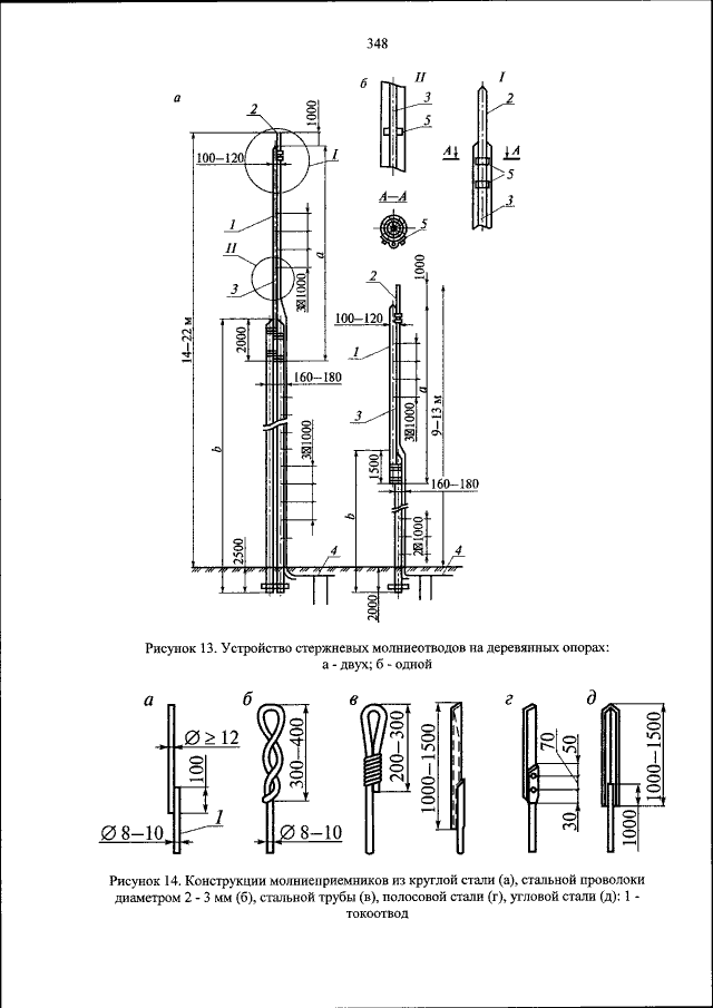
Страница №349 из 351:
Увеличить