Официальное опубликование правовых актов
ОФИЦИАЛЬНОЕ ОПУБЛИКОВАНИЕ
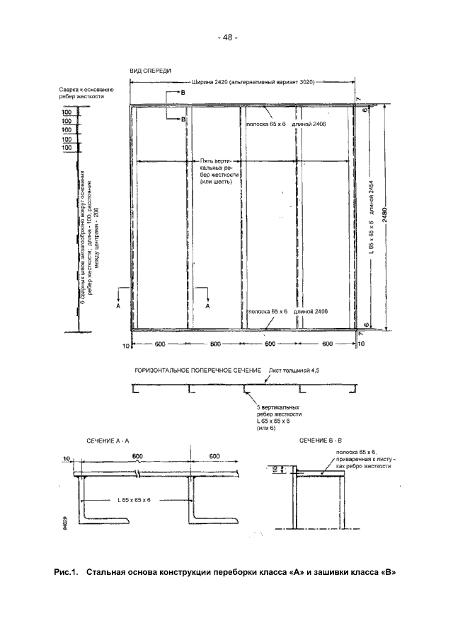
Международный кодекс по применению методик испытаний на огнестойкость 2010 года (Кодекс МИО 2010 года)
(вступил в силу для Российской Федерации 1 июля 2012 года)
Номер опубликования: 0001201803230024
Дата опубликования: 23.03.2018
Страница №48 из 230:
Увеличить