Официальное опубликование правовых актов
ОФИЦИАЛЬНОЕ ОПУБЛИКОВАНИЕ
Приказ Министерства транспорта Российской Федерации от 25.08.2015 № 262
"Об утверждении Федеральных авиационных правил "Требования, предъявляемые к аэродромам, предназначенным для взлета, посадки, руления и стоянки гражданских воздушных судов"
(Зарегистрирован 09.10.2015 № 39264)
Номер опубликования: 0001201510160017
Дата опубликования: 16.10.2015
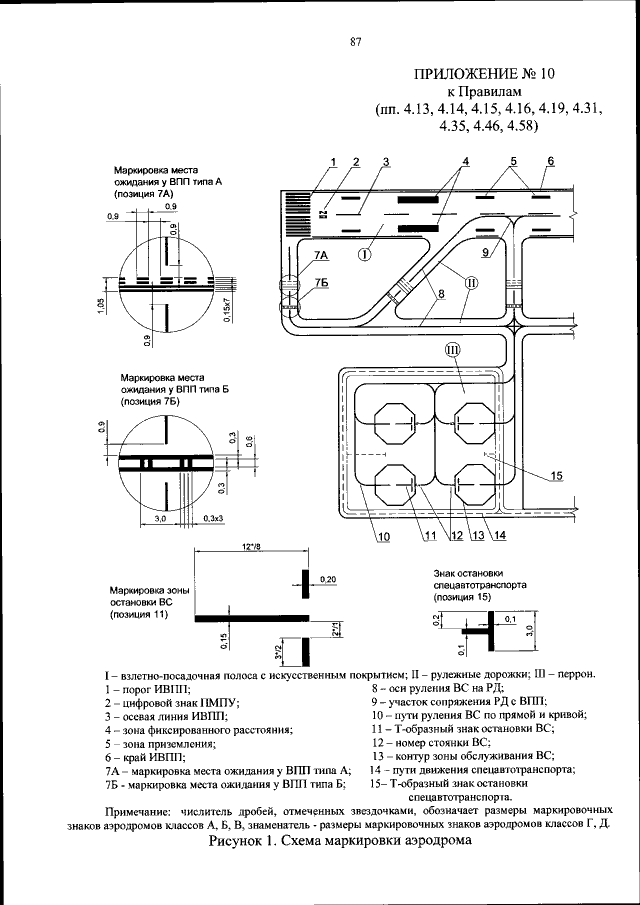
Страница №87 из 148:
Увеличить