Официальное опубликование правовых актов
ОФИЦИАЛЬНОЕ ОПУБЛИКОВАНИЕ
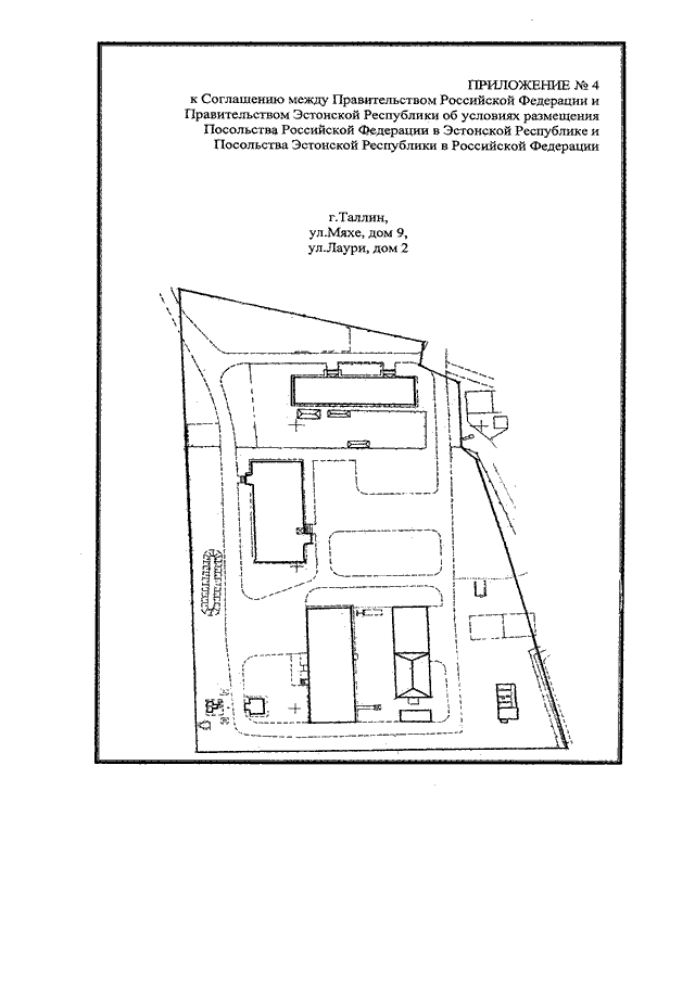
Соглашение между Правительством Российской Федерации и Правительством Эстонской Республики об условиях размещения Посольства Российской Федерации в Эстонской Республике и Посольства Эстонской Республики в Российской Федерации от 18 февраля 2014 года
(вступило в силу 14 марта 2014 года)
Номер опубликования: 0001201404040026
Дата опубликования: 04.04.2014
Страница №11 из 12:
Увеличить